Arena Sports + Magnuson Athletic Club
Magnuson Park, Seattle WA
Magnuson Park, Seattle WA
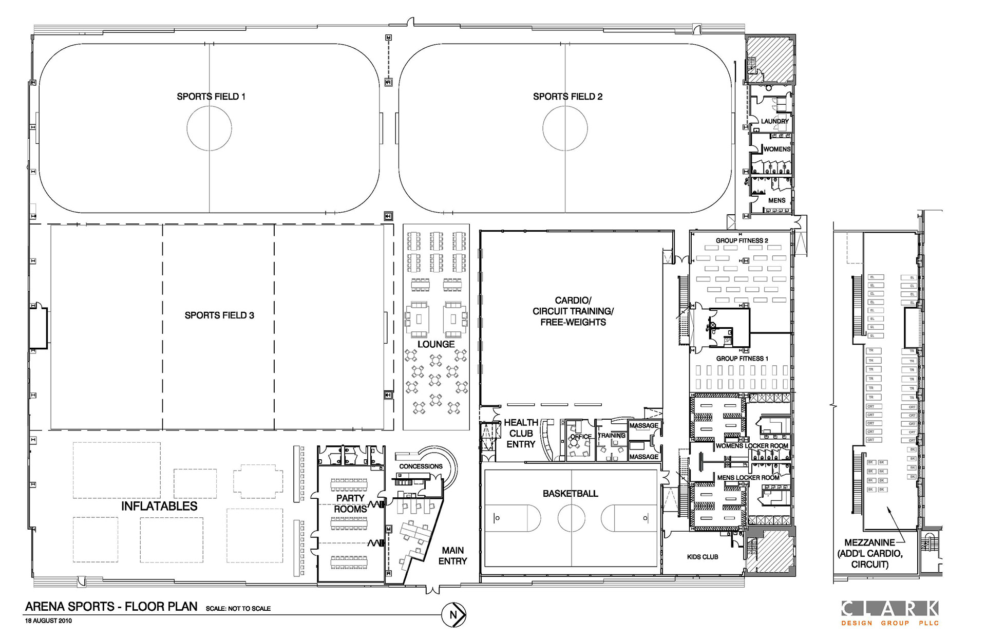
Architectural and interior design services for the renovation of an 83,600 square foot historic seaplane hangar in Seattle's Magnuson Park. The project program included 3 indoor soccer fields, a kid's party and play area, concessions, and a new 23,000 sf health club with views to Lake Washington. New architectural lighting, dramatic interior glazing system, and bold, playful colors created strong visual elements and took advantage of the building's














